
Bewerbung als Werkstudent im Bereich Architektur.
Für meine letzten Semester im Architekturstudium möchte ich weiter Berufserfahrung sammeln und meinen Horizont etwas erweitern. Als kreativer, neugieriger und detailorientierter Mensch, ist mir ein Arbeitsumfeld, mit dem ich mich identifizieren kann sehr wichtig. Ich möchte weiter Lernen und dabei helfen wertvolle Ideen Realität werden zu lassen.
Was ich mitbringe sind:
Ich freue mich Sie persönlich kennenzulernen.
Abitur Nordsee-gymnasium St. Peter-Ording
STUDIUM BETRIEBSWIRTSCHAFTSLEHRE TU-KAISERSLAUTERN
-abgebrochen-
STUDIUM ARCHITEKTUR FH ERFURT
pratikum erzbischöfliches bauamt freiburg i. brsg
praktikum und tätigkeit exner bauunternehmen
studium architektur fh erfurt
praxissemester, hilfstätigkeit hof437 alberschwende (a)
Architektur-schweighofer, dornbirn (a)
mitarbeit vorentwurf, entwurf, genehmigungsplanung, ausführungsplanung
projektleitung kleiner Innenarchitektur-projekte, vr-präsentationen, 3D-druck
geringfügige selbstständigkeit (planzeichnungen, websites)
reisen mongolei, china, thailand
studium architektur fh erfurt
fortgeschritten – archicad

a
gute kenntnisse – twinmotion

a
gute kenntnisse – indesign

a
gute kenntnisse – photoshop

a
gute kenntnisse – wordpress

a
grundkenntnisse – rhino

a
grundkenntnisse – vectorworks

a
grundkenntnisse – ms office

a
sonstiges:
english c2 – proficient I creality + cr10-max 3d-print I meta quest airlink + twinmotion I erste erfahrungen mit dall e, midjourney (visuell), gemini (text, kalender, email, erinnerungen) I semplice v6 for wordpress I führerschein b2
architektur-schweighofer:
„Herr[n] Sebastian Melder[s] […] Tätigkeitsbereich umfasste die Mitarbeit an der Planung, Entwicklung und Ausarbeitung von Architektur- und Innenarchitekturtprojekten in allen Leistungsphasen. Dazu gehörten insbesondere die Erstellung von Entwurfs-, Einreich- und Ausführungsplänen, die Koordination mit Fachplanern und Behörden sowie die Betreuung von Bauherren.
Herr Melder hat die ihm übertragenen Aufgaben stets zu unserer vollsten Zufriedenheit
erfüllt. Seine Arbeitsweise zeichnete sich durch hohe Fachkompetenz, Sorgfalt und Verantwortungsbewusstsein aus. Er verfügte über ein ausgeprägtes gestalterisches Verständnis und konnte komplexe Planungsaufgaben effizient und lösungsorientiert
bearbeiten.
Er integrierte sich rasch in unser Team und trug mit seinem kollegialen Wesen zu einem sehr
angenehmen Arbeitsklima bei. Aufgrund seines Engagements und seiner selbstständigen Arbeitsweise konnte er im Laufe seiner Tätigkeit die Leitung eigener Projekte übernehmen, die er erfolgreich und zuverlässig umsetzte.
Das Dienstverhältnis endete auf eigenen Wunsch von Herrn Melder.“
Im schweizer Kanton Graubünden sollte eine die bestehende Ferienwohnung aus den 60er Jahren in einem modernen, gemütlichen chalet-stil umgebaut werden.
die raumhöhe mit 2,22m und ein kompakter, überwiegend tragender Grundriss waren eine herausforderung.


zierbalken und vertäfelung aus gealterter, heimischer lärche und heimischer gnais verleihen den räumen eine warme, natürliche ausstrahlung.














auf geteiltem grundstück bauen christian aus deutschland und franco aus österreich jeweils ein ferienhaus für sie und ihre partner.
trotz sehr unterschiedlicher persönlichkeiten verbindet beide die liebe zur bregenzerwälder natur, sei es wintersport, mountainbiking oder wanderungen.
der baugrund selbst ist ein steiler südhang in einer abgelegenen ferienhaussiedlung mit einer mischung aus bedarfsbauten, einfachen hütten und ausgebauten ferienhäusern.


zusammen mit der örtlichen bauforum wurde eine position und form entwickelt, die sich in bestehende giebelkaskaden und sichtachsen einfügt.
die fassade ist ortsüblich aus lärchenschindeln mit einem traditionellen „wurf“ auf einem der gebäude.
entsprechend der charakter beider bauenden, gestalten sich beide gebäude jeweils auf eigene weise: einmal introvertiert massiv mit wenigen quadratischen ausschnitten und einmal in einer aufgelösteren form mit großflächigen verglasungen und unkonventioneller raumaufteilung.


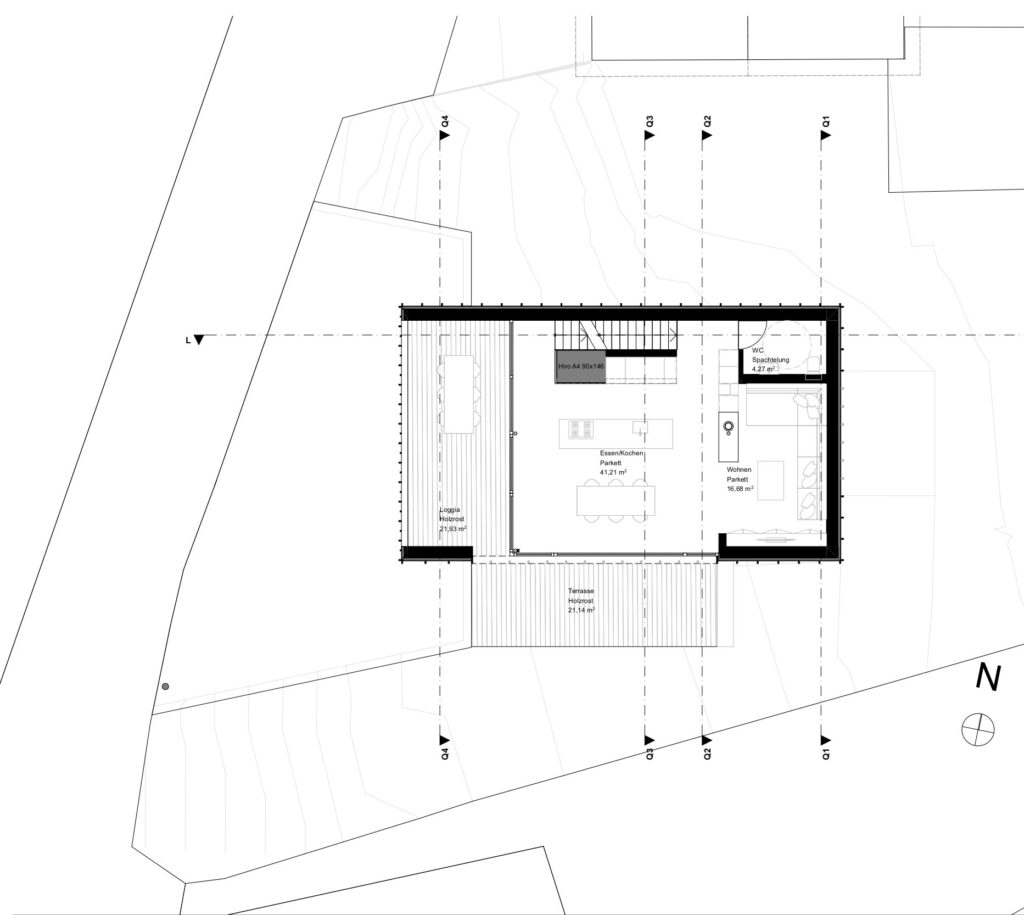
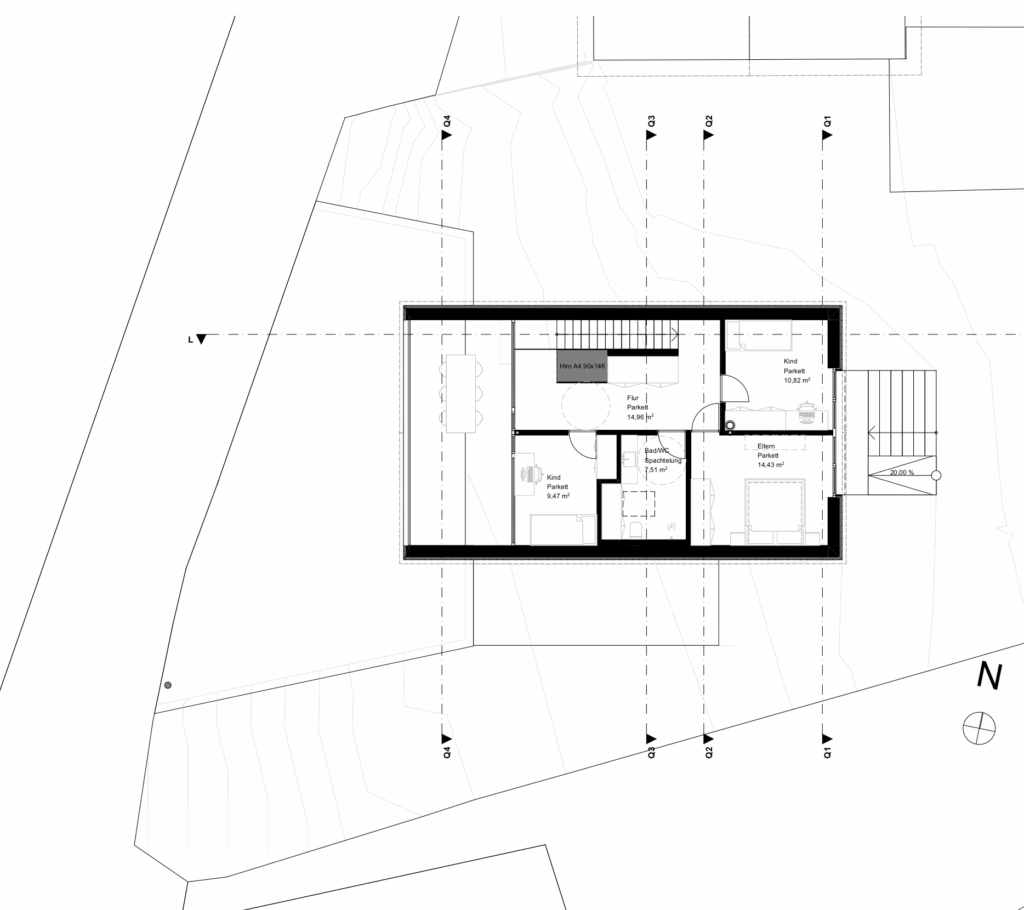
an einem hanggrundstück im baden-würtembergischen teil des bodensees wollte der bauherr ein modernes öko-haus für seine familie und sich bauen.
abstandsflächen, brandschutzbestimmungen und die örtlichen gestaltungsrichtlinien haben nur einen schmalen planungskorridor zugelassen.


die wohnräume öffnen sich zum garten und lassen einen weiten blick in seerichtung zu.
im innereren sind die tragenden weißtanne massivholzwände, sowie das dach sichtbar. auch fenster und leichtbauwände sind im selben rohstoff ausgeführt. nur der sockel, sowie die erdberührenden bauteile sind in beton gehalten.


wichtige anforderungen waren unter anderem ein hohes maß an barrierefreiheit und ebenerdige, mit dem rollstuhl erreichbare fluchtwege auf jeder etage.
low-tech einfamilienhaus für tanja und bernd im kleinen ort gaissau, nahe der schweizer grenze am bodensee.
durch das satteldach und die niedrige traufhöhe ist eine position am grundstücksrand und damit ein großzügiger garten möglich.


der wunsch war ein kompaktes, wirtschaftliches gebäude mit hohem gestalterischen anspruch und einem dreidimensionalen, offenen wohngefühl.
einfache, langlebige materialien im außenbereich und warme, lokale weißtanne im innenbereich.











